Wilderness Cottage

Tunbridge Wells
Extension and alteration of a locally listed mid-19th century cottage within a conservation area

Context

This project involves the extension and restoration of a mid-19th century cottage located within the Royal Tunbridge Wells Conservation Area.

The building, likely dating from around 1850, was originally a lodge or ancillary structure associated with a larger Victorian estate. While modest in scale, it retains elements of historic character, particularly in its proportions and stucco detailing.

Over time, the cottage had been altered through the addition of a poorly integrated catslide extension and porch, which disrupted the clarity of the original building.

Brief

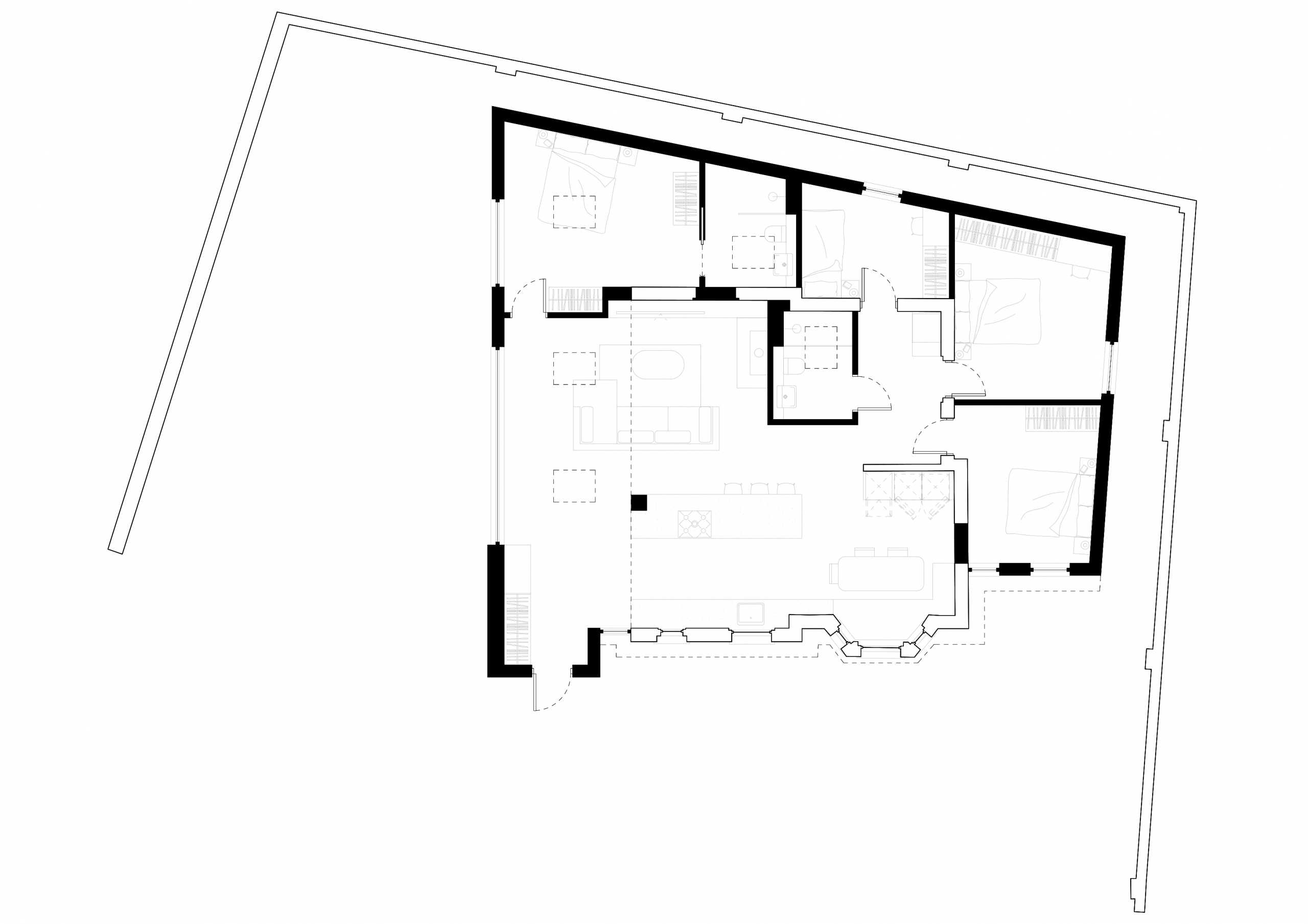
The brief was to adapt the cottage for modern living while preserving its character and responding sensitively to its heritage context. This included removing later additions, improving the internal layout and introducing new accommodation through carefully designed extensions.

Design Response

The design approach focused on restoring the original form of the cottage and ensuring it remained the primary element of the composition. Unsympathetic additions were removed to reveal the original building, including the reinstatement of a clearer front elevation.

New extensions were introduced as a series of low profile, single storey elements, set back and stepped down from the existing structure to remain visually subordinate. This approach allows the original cottage to remain clearly legible, while accommodating the additional space required.

A contemporary architectural language was adopted for the new work, using timber cladding, render and glazing to create a clear distinction between old and new. Vertical glazed junctions and careful material changes reinforce this separation, allowing the building’s evolution to be understood.

The design was developed through pre-application discussions with planning and conservation officers, ensuring the proposals responded appropriately to the site and its setting.

Outcome

The result is a carefully balanced composition that retains the character of the original cottage while providing a functional and well considered home.

The removal of poor quality additions and the introduction of a restrained, contemporary extension allows the building to sit more comfortably within its setting, while securing its long term use.

Location: Tunbridge Wells
Project type: Extension and alteration
Existing house: Mid-19th Century Cottage
Planning context: Locally Listed Building, Conservation area