Watts Avenue

Rochester
Extension and alteration of a Victorian detached house within a conservation area

Context

This project involved the alteration of a Victorian detached house located within the Watts Avenue and Roebuck Road conservation area in Rochester.

The existing property was well preserved, but a later rear conservatory, constructed in uPVC, sat uncomfortably alongside the original building and did not reflect its architectural quality or character.

Brief

The brief was to replace the existing conservatory with a more appropriate extension, improving the quality of the space and its relationship to the house while remaining sensitive to the conservation area.

Design Response

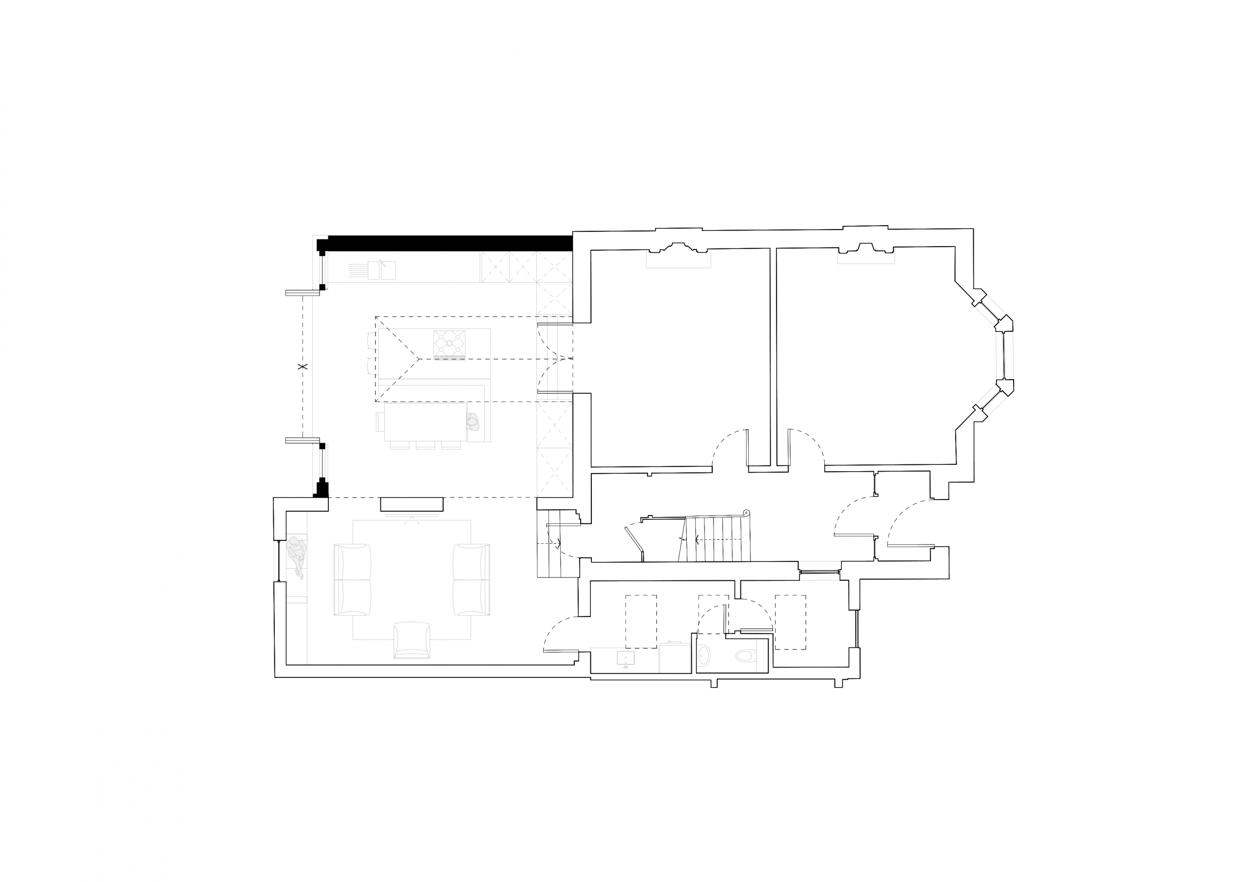
The proposal replaces the conservatory with a modest orangery style extension, designed to sit comfortably alongside the Victorian house while remaining clearly subordinate to it.

The design draws on traditional proportions and materials, allowing the new addition to feel more consistent with the character of the original building. At the same time, the detailing remains simple and restrained to avoid competing with the main house.

Internally, the extension provides a more appropriately scaled kitchen space, improving the layout and flow of the home. A roof lantern is introduced to bring natural light into the centre of the plan without dominating the rear elevation.

Externally, the proposal also improves the relationship between the house and garden, with a series of new steps creating a more gradual and usable transition between levels.

Outcome

The result is a more coherent and functional home, where the new extension feels integrated with the original building.

By replacing a poor quality addition with a more carefully considered design, the project enhances both the character of the house and its setting, while improving how the space is used on a daily basis.

Location: Rochester
Project type: Extension and alteration
Existing house: Victorian detached
Planning context: Conservation area