Bournes Corner

Bridge, Canterbury
Extension and alteration of a 1930s Arts and Crafts detached house

This project involves the extension and alteration of an Arts and Crafts detached house within the Bridge Conservation Area near Canterbury. While the house retains strong original features, previous changes had begun to detract from its overall character.

Context

The property sits within a generous plot in a village setting characterised by traditional architecture and mature landscape. Earlier alterations, including uPVC windows and a later conservatory, had weakened the architectural integrity of the house.

Brief

The brief was to enhance the house for modern family living while restoring its architectural integrity and responding carefully to its conservation area setting.

This included replacing the existing conservatory with a more substantial extension, reworking the internal layout and improving the overall quality and performance of the building.

Design Response

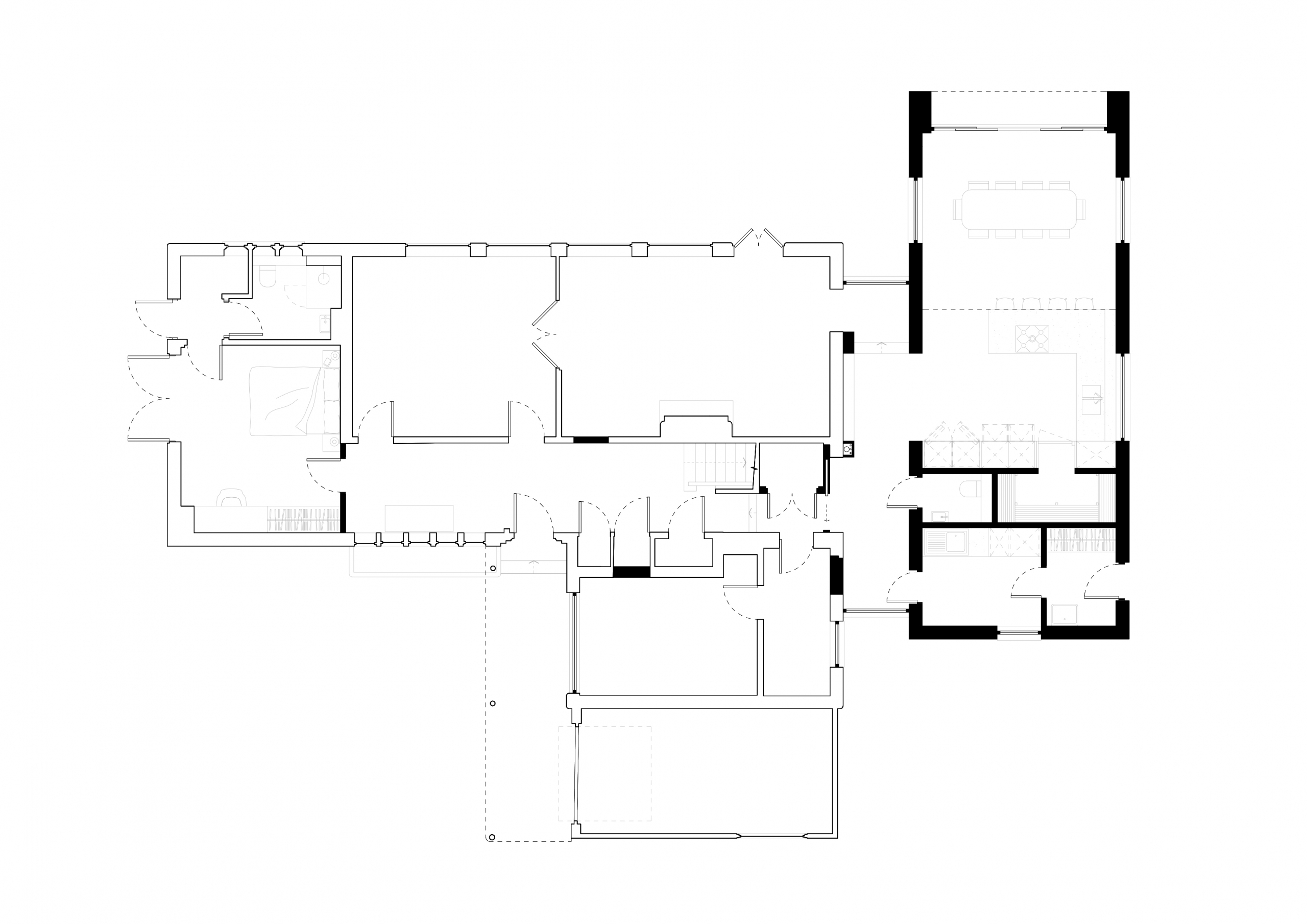
The proposal introduces a two storey rear and side extension, designed to sit comfortably alongside the existing house while remaining clearly legible as a contemporary addition.

The extension is positioned away from the principal elevation and adopts a subordinate form, ensuring the original building remains the focus. Proportions, rooflines and key datums were carefully aligned to create a cohesive relationship between old and new.

A contrasting material palette of dark stained timber and aluminium framed glazing provides a contemporary response, while maintaining a dialogue with the vertical rhythm and proportions of the existing Arts and Crafts architecture.

Technical Design and Delivery

Alongside the design work, the project has involved detailed coordination through technical design and will continue through the construction stage.

The extension is being delivered using a SIPs structure, requiring close coordination between the architectural design, structural strategy and manufacturer to ensure the system integrates cleanly with the existing building. This approach supports improved build quality, thermal performance and programme efficiency.

Outcome

The result is a more coherent and functional family home that better reflects the character of its setting.

The removal of unsympathetic elements and the introduction of a carefully considered extension allows the house to sit more comfortably within the conservation area, while improving layout, usability and environmental performance.

Location: Bridge, Canterbury
Project type: Extension and alteration
Existing house: 1930s Arts and Crafts detached
Planning context: Conservation area